
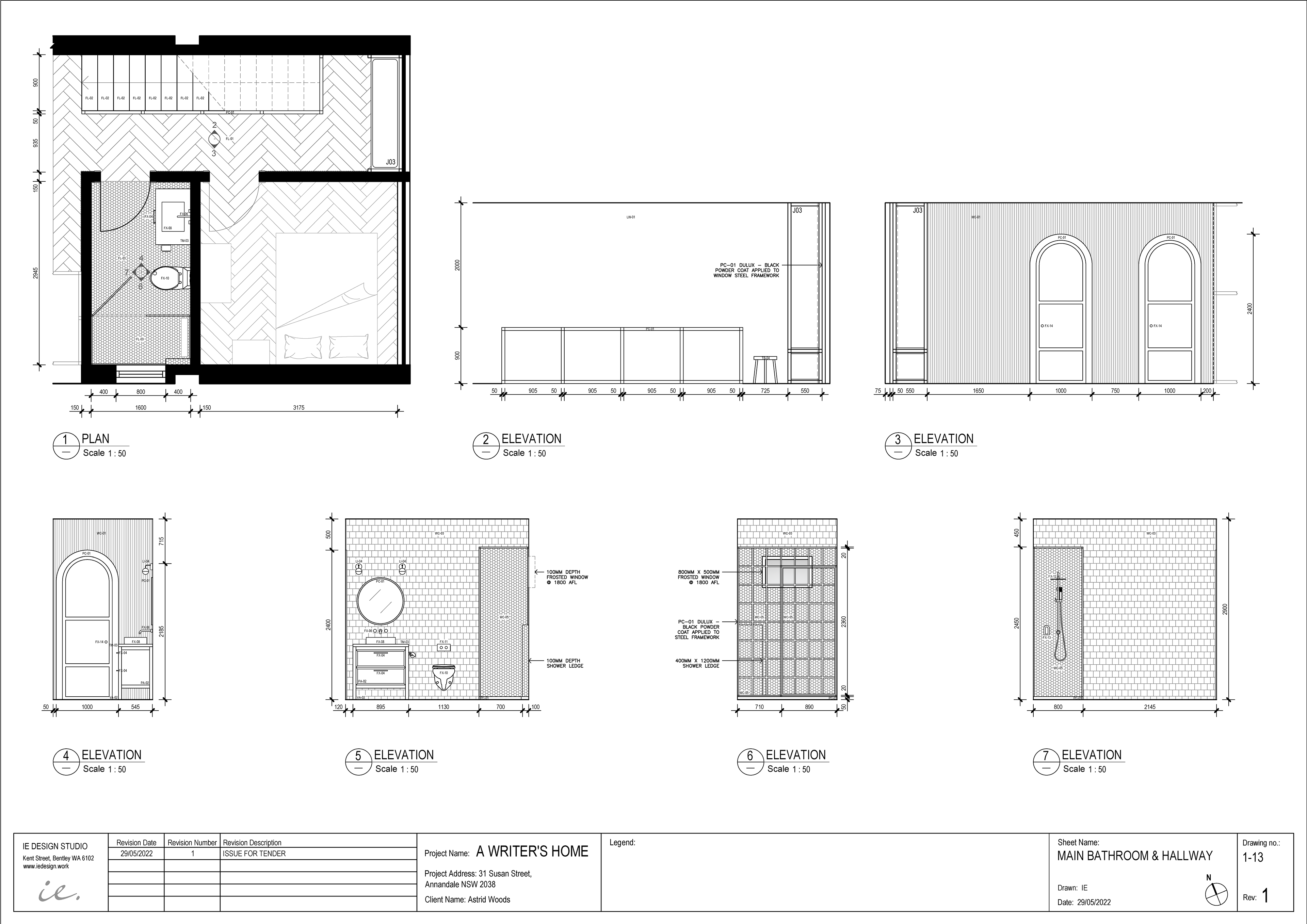
Master Bedroom

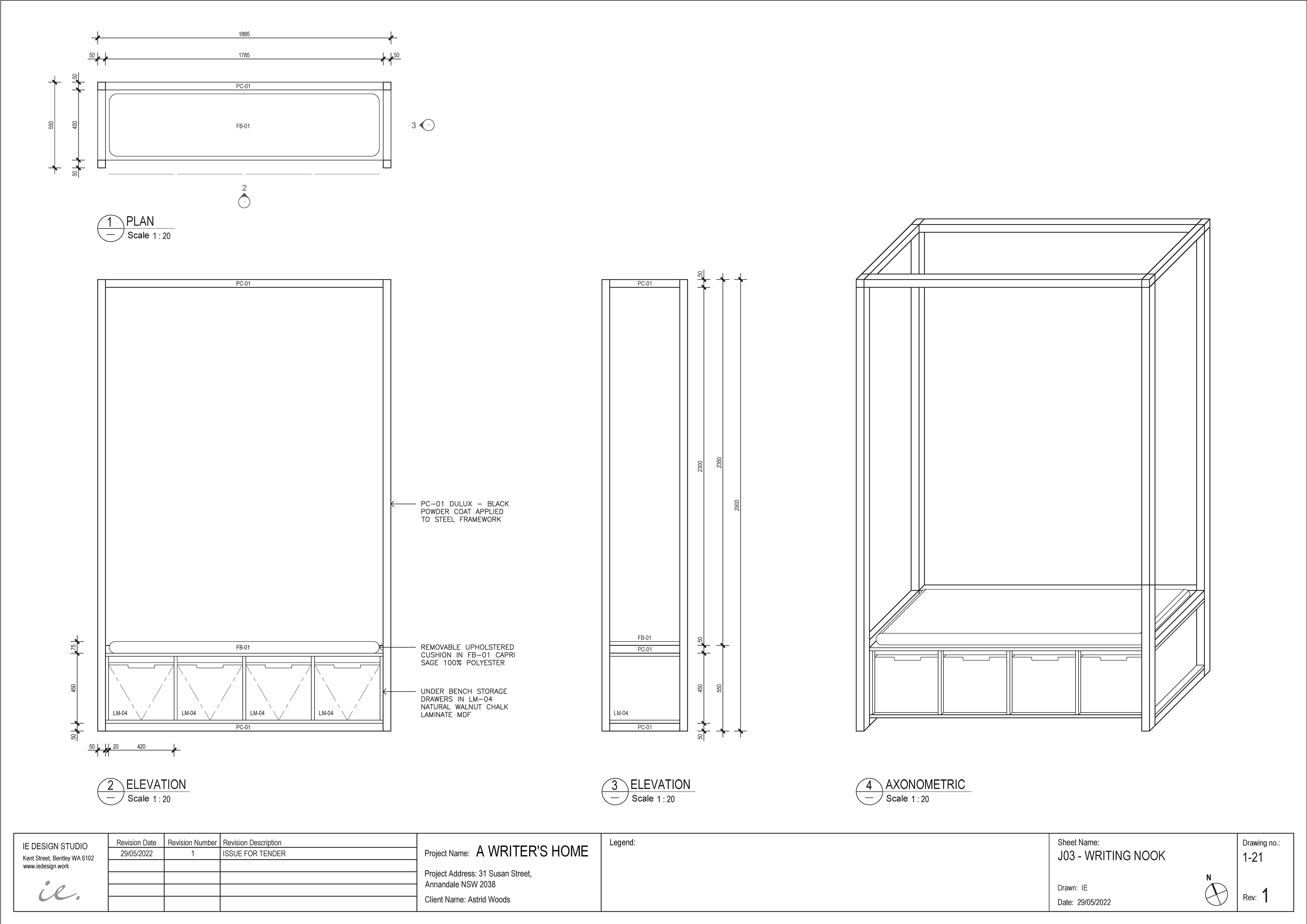
Reading Nook

Open Dining Area

Ensuite Bathroom

Kitchen

Kitchen Detail

Staircase

Private Study
















Astrid Woods, homeowner and author, hired IE Design Studio to design her residential property to accommodate her lifestyle, and create a multi-purpose space for both working and living. Astrid had requested multiple locations for her to work on her writing, in both public and private spaces within her home, and room for her cat – Benny. The home focuses on creating connection points between the writer and their surroundings in nature, with the incorporation of natural elements, materials, and forms. The goal is to design areas within the home that promote creativity and inspiration for the writer to write.